Stacks Image 540995
Projekty a studie
DŮM S PEČOVATELSKOU SLUŽBOU PRAHA 10
Stacks Image 531437
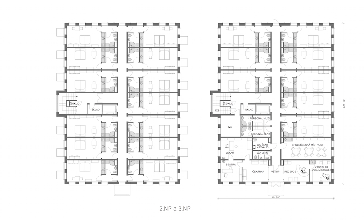
Tento návrh domu s pečovatelskou službou v Praze 10 je situován na okraji zastavěného území v blízkosti přírodního prostředí s mnoha volnočasovými aktivitami. Stavbou nedojde ke kácení vzrostlých stromů ani omezení prostupnosti území pro veřejnost. Projekt počítá se stavbou o 3 podlažích, kde budou kromě jednotek pro ubytování seniorů k dispozici také lékařská ordinace, společenská místnost a jídelna s možností stravování formou cateringu. Záměr vychází z aktuální demografické studie, která v následujících letech předpokládá další nárůst počtu seniorů a tedy i potřebu zařízení tohoto typu.

Stacks Image 541009
Stacks Image 541011
Stacks Image 541015
Stacks Image 541013